57
$1,749,998 Sale
Listed 5 hours ago
7005/7013 Manning Place
· 8
· 6.0
· 8
· 5033
Key Facts
Key facts for 7005/7013 Manning Place
Property Type
Apartment, Duplex
Parking
Garage: Yes, 8 parking
MLS #
10364381
Size
5033 sqft
Basement
Full
Listed on
-
Lot size
-
Tax
-
Days on Market
-
Year Built
2026
Maintenance Fee
-
Description
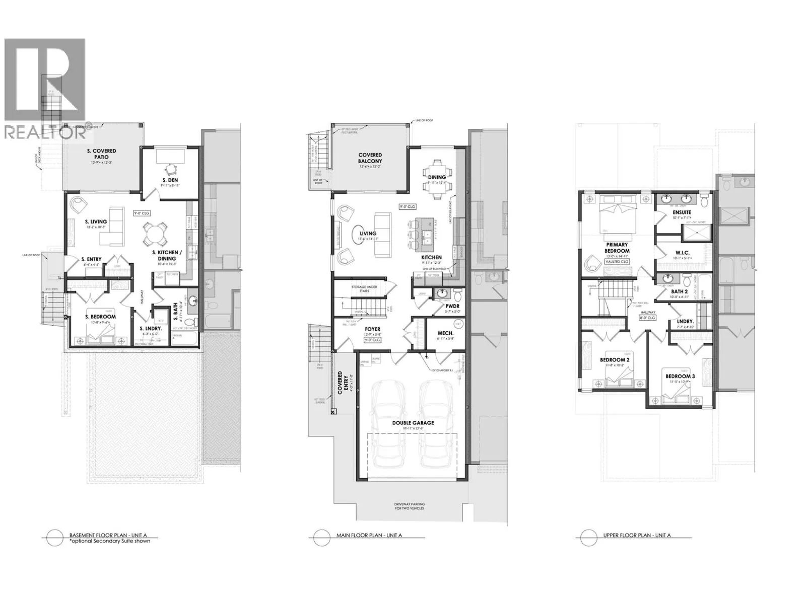
Exceptional Investment Opportunity!!!! This Brand New Full Duplex with 2 Legal suites is Located in the Foothills Newest subdivision at Manning place. Each side has 3 Bedrms on the upper level, Kitchen, Living, Dining on the main level and walk-out basement with 2 bedroom or 1 bedrm+ Den suite, maki...ng this a 8/10 bedrm Revenue Propert!!. The open floor plans with electric fireplace, kitchen island & dining off covered sundeck offers the ideal ambiance for entertaining. Upstairs you'll find all 3 bedrms each side. Primary has 4 piece ensuite with heated floor, double vanity & shower, as well as a large walk-in closet. The walk-out basement has 2 bedrooms or 1 bdrm + Den, covered patio and fully self-contained. 2 double garages, fully fenced, landscaped & retaining included. Projected income of $11,000/month ($3500 for main units X 2,$2000 for suites X 2) give this a CAP rate of just over 7%!!! The rural feel, ease of living and convenience to town, schools and the ski hill will appeal to excellent tenants and Owners alike. Great investment & the ease of owning New Construction with Home Warranty for piece of mind!!! GST is applicable. (id:10452)
Similar Properties (No results)
Room Types
4pc Bathroom
-
Dimensions 4'11'' x 10'1''
49.58 sqft
4pc Ensuite bath
-
Dimensions 8'5'' x 10'1''
84.87 sqft
Bedroom
-
Dimensions 10'2'' x 11'8''
118.61 sqft
Listing courtesy of: RE/MAX Vernon
This REALTOR.ca listing content is owned and licensed by REALTOR® members of The Canadian Real Estate Association.